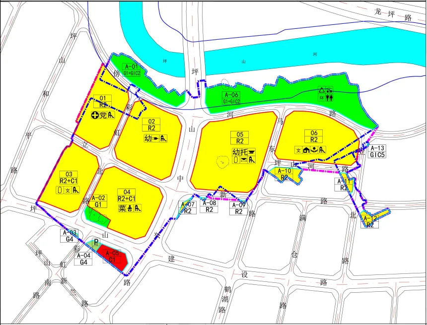
Robot Industry Park
The project is located in Fuyong Street, Bao'an District, Shenzhen, with convenient transportation and a subway entrance. There are a total ···